Aktuelle Projekte
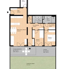
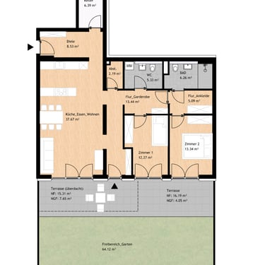
Bahnhofs-Quartier Zell – Wohnung 13
Wohnung 13 – 3-Zimmer-Gartenwohnung im Haus V
Wohnfläche: ca. 115 m²
Lage: Gartengeschoss
Besonderheiten:
Terrasse und Gartenfläche ca. 61 m²
Offene Küche mit großem Ess-/Wohnbereich
Großzügige Diele + Ankleide + Abstellraum
Zwei Schlafzimmer und separates Gäste-WC
Kellerraum inklusive
Diese Wohnung bietet besonders viel Platz und eine sehr gut nutzbare Raumaufteilung für verschiedenste Lebenssituationen.
Kaufpreis 495.000,-€
Tiefgarage Stellplatz ab 25.000,-€
Auf Wunsch mit 10-jähriger Mietgarantie
Jetzt Beratung oder Besichtigung anfragen
Sie möchten eine dieser Wohnungen kaufen oder mehr erfahren?
Dann nehmen Sie Kontakt mit uns auf – wir beraten Sie gerne persönlich und zeigen Ihnen die Wohnungen vor Ort.










Kontaktieren Sie uns
Bei Fragen oder Interesse freuen wir uns jederzeit über Ihre Anfrage.
Bahnhofstraße 1
79669 Zell im Wiesental
